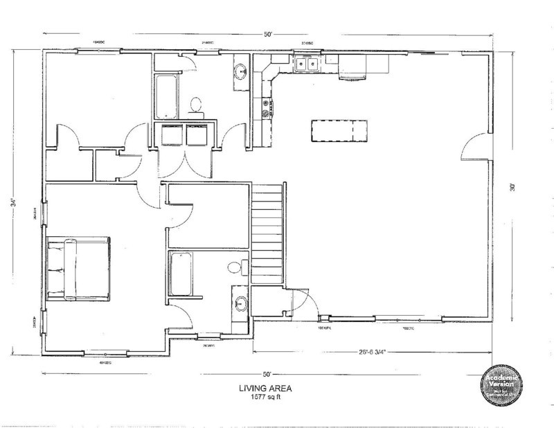
Mr. Taylor and his student crew have been busy creating the inside walls and siding is being installed. Below are inside photo and floorplan:



January 13, 2022
Mr. Taylor and his student crew have been busy creating the inside walls and siding is being installed. Below are inside photo and floorplan:

