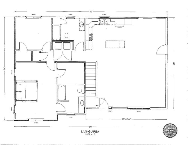
Mr. Taylor's Industrial Tech Classes have been working hard to complete their house that is set to be auctioned off on Wednesday, June 1 at 6:30pm. Open House to view the interior and speak with Mr. Taylor begins at 5pm. See photo below for the floor plan.


